新着物件‼《こちらをクリック》

2025.07.10

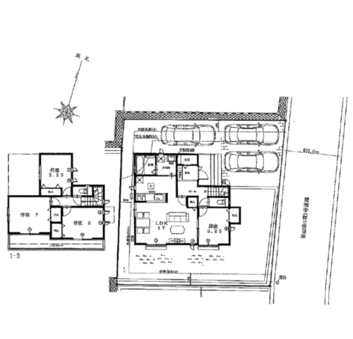
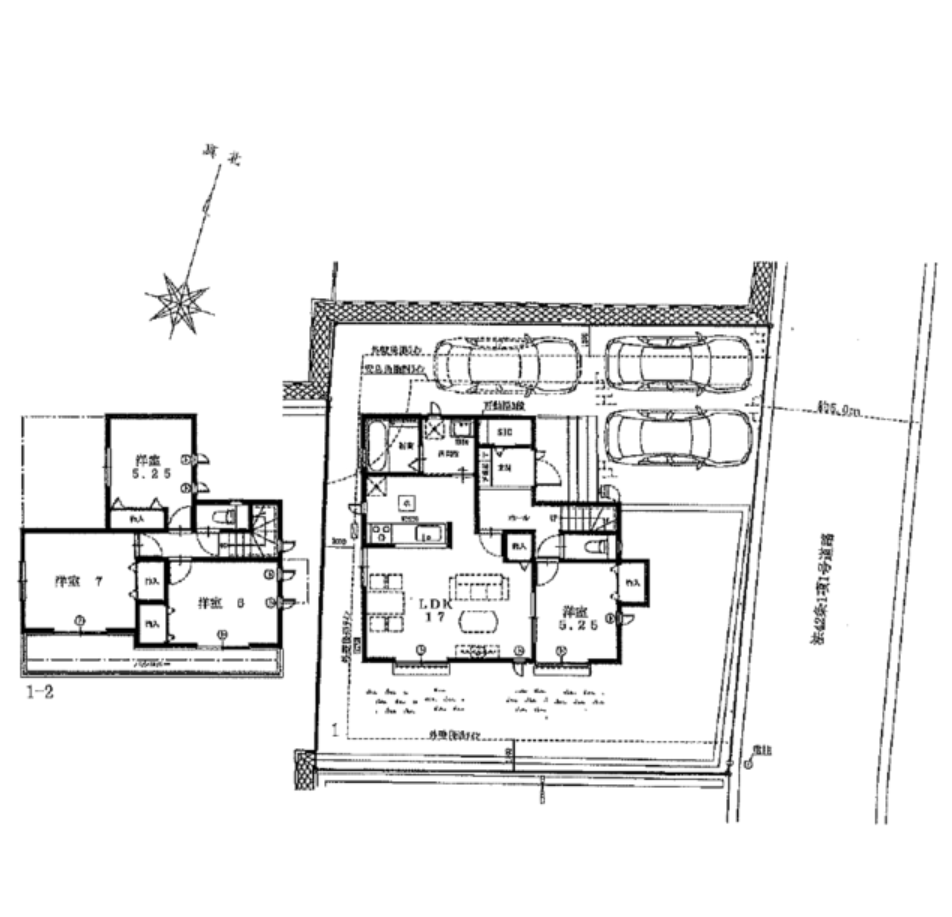
町田市本町田 新築戸建!!

閑静な住宅街にある4LDKの新築戸建です♪
全居室収納あり!
カースペース3台可(車種による)

販売価格 6,190万円

ぜひお気軽にお問い合わせください!

※画像をクリックすると拡大表示されます
会社名